Prodaje se dvosoban stan u soliteru kod autobuske stanice i Gintaša, Podgorica.

€ 118 800

ID: 343/25

Podgorica , Kod Autobuske Stanice

55 m2

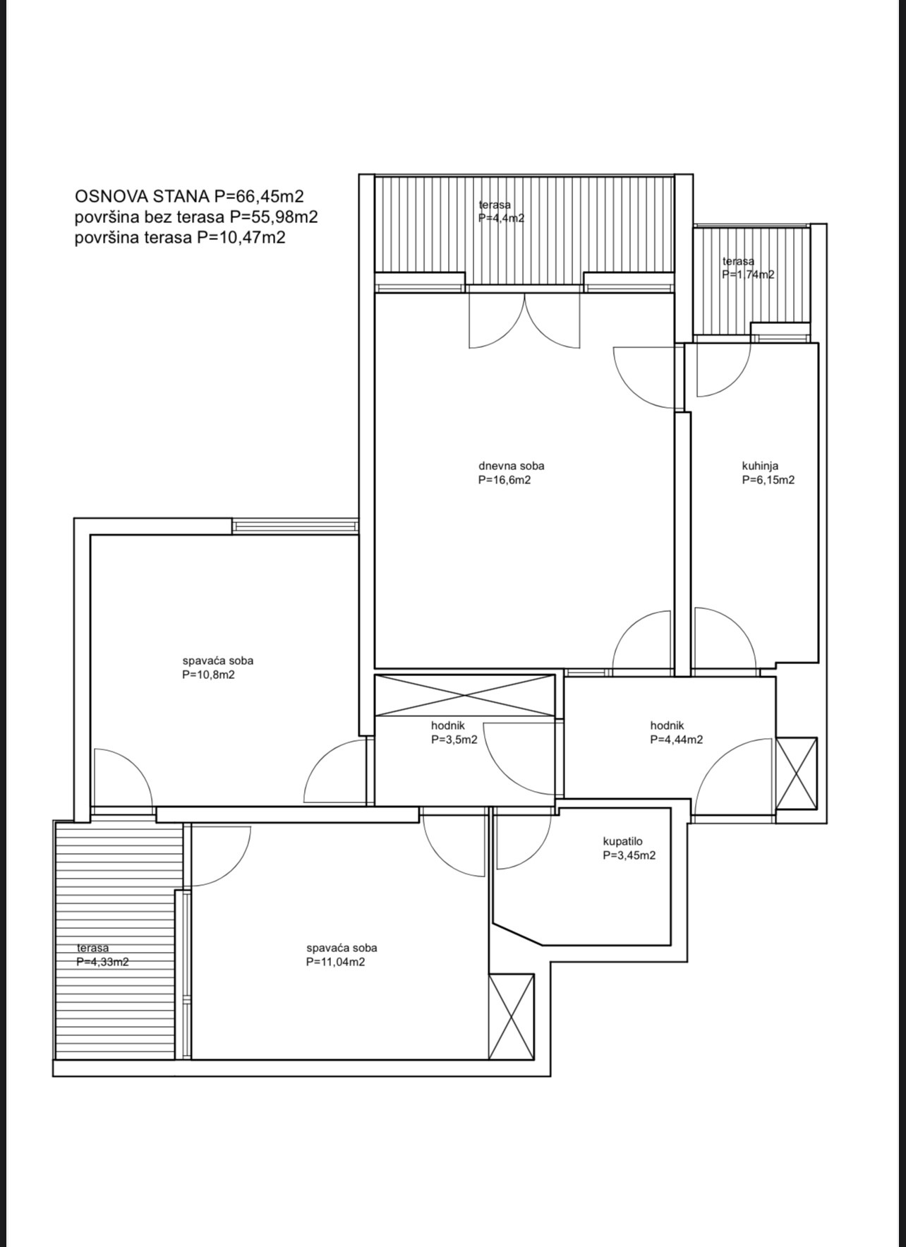
66 m2

Stan

2

Nenamješten

1

3

Stan se nalazi na 8. spratu zgrade, upisano je 55 m2, a ima još 11 m2  terasa koje nisu upisane. 
Stan ima odličnu strukturu: hodnik koji vodi od kuhinje, koja ima izlaz na manju zatvorenu terasu, zatim ima vrata koja direktno povezuju sa dnevnim boravkom. 
Dnevni boravak je komforan i ima izlaz na komofrnu terasu koja je okrenuta južno, zatim hodnik koji povezuje spavaći dio, gdje se nalaze kupatilo i dvije spavaće sobe, koje imaju izlaz na komfornu terasu. 
U stan su potrebna ulaganja. 
U blizini se nalaze pijaca, autobuska i željeznička stanica, škole, vrtići i drugi sadržaji. 
Od samog centra grada zgrada je udaljena 5 minuta hoda.  

Slične nekretnine

Prodaje se dvosoban stan na Gorici C u novom GeoMaster kvartu, Podgorica.

Gorica C, Podgorica

ID: 239/25

PRODAJA

€ 156 000

Prodaje se dvosoban stan na Gorici C u novom GeoMaster kvartu, Podgorica.

Stan se nalazi na prizemlju, ima odličan raspored prostorija i izlaz na terasu koja ne ulazi u kvadraturu stana.Nalazi se na atraktivnoj lokaciji u Podgorici. Stan je po strukturi dvosoban. Ima...

2

Soba

1

Kupatilo

52

m2

Prodaje se Dvosoban Stan na Starom Aerodromu , Podgorica

Stari Aerodrom, Podgorica

ID: 303/25

PRODAJA

€ 199 800

Prodaje se Dvosoban Stan na Starom Aerodromu , Podgorica

Prodaje se dvosoban stan u novoj zgradi na Starom Aerodromu , Podgorica . Stan se nalazi na petom spratu i orijentisan je istocno sa pogledom na bulevar . Stan ima 66 kvadrata i ima dvije spavace...

2

Soba

2

Kupatilo

66

m2